資料ダウンロード吸震式アンカーボルト

大変恐れ入りますが、下記からダウンロード願います。

img024.jpgリーフレットⅠ■資料1 吸震式アンカーボルト A4版4ページカラー4Mサイズpdf

imag025.jpgリーフレットⅡ■資料2 吸震式アンカーボルト A4版4ページカラー4Mサイズpdf

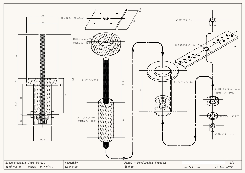
ass_zusum.jpg組み立て部品図■資料3 吸震式アンカーボルト 部品組立図

image888_88.jpg施工断面図■資料4 吸震式アンカーボルト 施工断面図

リンクを設定します。LinkIcon